☆新モデルハウスのお知らせ☆
2016.03.25
11:43
レオグランデ枚方長尾スタッフの丹下です。
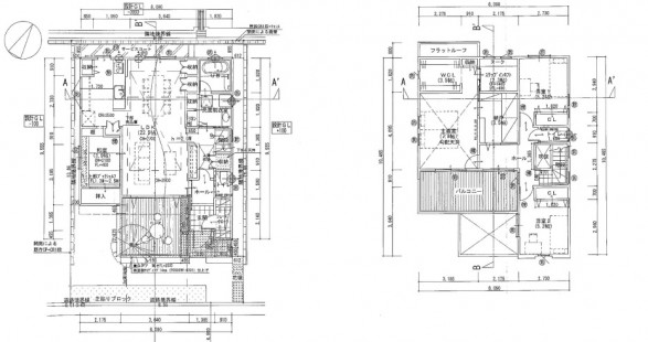
現在、建築中の新モデルハウスの図面をご紹介させて頂きます。
こちらの間取りはレオグランデ枚方長尾で定期的に開催されているママ座談会にて、当社にて購入していただいたお客様の意見を取り入れた
本当のママ目線のお家です。
建築中ではわかりにくかった事や、生活してみて気がついた事など細やかな事まで考え抜かれたモデルハウスです。
現在、4月末日の完成に向けて鋭意建築中です。
このモデルハウスのお披露目も兼ねてイベントも企画しています。
また詳細はこちらのブログにてご案内させて頂きます☆

この記事を書いた人
この記事を読んだ人はこちらの記事も読んでいます。








