シュッとした家 with ロジア

ロジアが明るく照らす、家族のための空間。

ロジアのある家。
外からの視線を遮りながら、
カーテンのいらない明るいリビングをつくる。
まわりを気にせずに、プライベートなアウトドアタイムが満喫できる。
シュッとした家ならではの、洗練された開放的なデザインだから、
より一層ロジアの借景が映える家。
毎日忙しい、わたしの心を癒してくれるロジア。
ぜひ、この気持ちよさを体感してください。

デザインクラス-レオグランデ枚方藤阪-

  • 敷地面積155.79m² (47.12坪)
  • 延床面積111.78m² (33.81坪)
  • シューズクローク
  • バルコニー
  • ロジア
  • ファミリークローゼット
  • ウォークインパントリー
  • ドレッシングコーナー

MODEL
HOUSE OPEN

ロジアが気持ちいい!
シュッとした家モデルハウス見学はお気軽に。

ご見学予約は下記のボタンをクリック

モデルハウスの見学予約をする

シュッとしたロジアと暮らす、
わたしと家族のストレスフリーな1日のルーティーン。

  • am 7:30
    Good Morning

    窓枠が大きく、
    ノイズの少ない空間デザインだから、
    ロジアがより際立つリゾートのような風景に。
    家族のふとした時間を
    「映え」させるリビングスタイル。
  • am 8:00
    Get Ready

    洗練された収納スペースと
    心地よい空間デザインが、
    日常の何気ない瞬間を特別な時間に。
  • pm 7:30
    Family Dinner

    家族の団らんがさらに特別なものに。
    広々としたリビングと
    大きなガラス窓が自然と室内をつなぎ
    開放感を演出。
  • pm 10:00
    Night Routine

    静寂とともに心身を解きほぐすひとときを。
    大きな窓から広がる夜空と一体になった
    空間で、深呼吸をしながら
    心を整える贅沢な時間を。

洗練された、
ストレスフリーなシュッとした
ポイントは他にも

  • Dress UP
    本当に「使える」
    ウォークインクローゼット+ドレッサーを。
    1日の始まりを整える大切な場所。
  • Good Design
    毎日見るたびに気持ちがいい暮らしの中の風景。窓枠の厚さ、建具や巾木までこだわるから「何か違う」が感じられる住まい。
  • Kitchen Storage
    キッチンから洗面に抜けられる
    ファミリークローゼットとセカンド冷蔵庫まで
    置けるパントリー。収納にも暮らしやすさにも
    ストレスフリーなアイデア。

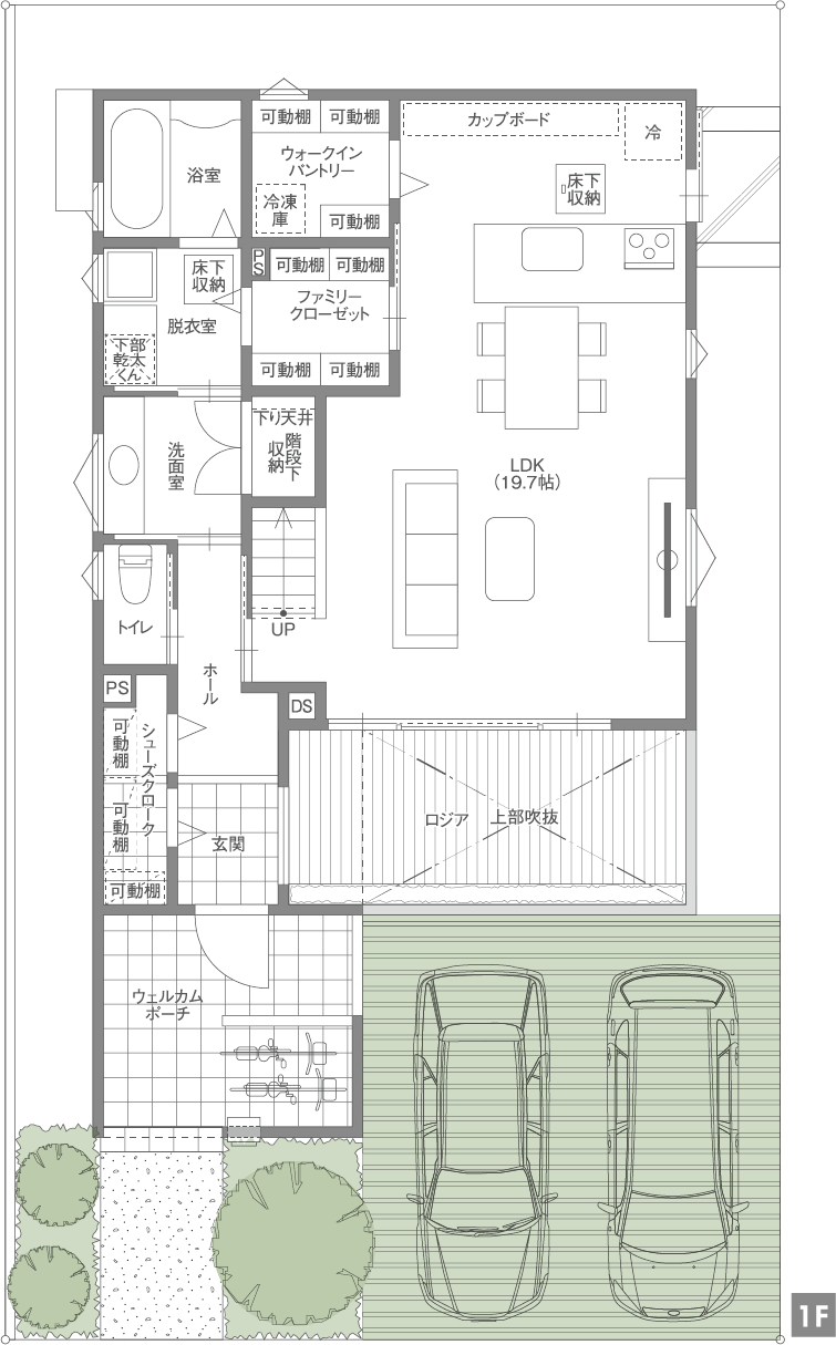
MODEL HOUSE PLAN モデルハウスプラン

シュッとした家のモデルハウスプラン

3LDK
  • シューズクローク
  • バルコニー
  • ロジア
  • ファミリークローゼット
  • ウォークインパントリー
  • ドレッシングコーナー
  • 敷地面積155.79m² (47.12坪)
  • 延床面積111.78m² (33.81坪)
  • 1階面積61.48m² (18.59坪)
  • 2階面積50.30m² (15.21坪)
  • バルコニー面積8.69m² (2.62坪)
  • ウォークインパントリー

    食器や保存食の収納に役立つパントリーで、キッチンが充実。見た目もスッキリしまえます。冷凍庫も備え付けられているので、料理の作り置き保存や週末にまとめ買いをした食品を新鮮な状態で保存できます。
  • どろんこKID’s動線

    どろんこになったお子さまも汚れを気にせずスムーズに脱衣室へ。玄関からお風呂場までの動線を短縮することで、どろんこ遊び後でもすぐにシャワーを浴びることができます。
  • シューズクローク

    外で使うものは家にあげずにシューズクロークへ。ベビーカーや雨具等をしまうのに便利。シーズンオフの靴やアウトドア用の靴もまとめて収納でき、季節ごとの入れ替えが簡単なので玄関まわりがいつでも整います。
  • ウォークインクローゼット

    広々としたワードローブと布団置き場を設置することで、季節ごとの衣類や布団・毛布をすっきり収納。ドレッシングコーナーを設けることで朝の服選びからメイクまで一カ所で完結できるので、忙しい朝の準備もゆったりできるのがポイントです。
  • 仕切れる2階洋室

    仕切りを開けると2つの洋室が1室に。子どもの成長に合わせて使い分けられます。
  • 主寝室の手洗いコーナー

    起きたらすぐに顔を洗える手洗いコーナー。バルコニーで植物の手入れをした後にも便利。

MODEL
HOUSE OPEN

ロジアが気持ちいい!
シュッとした家モデルハウス見学はお気軽に。

ご見学予約は下記のボタンをクリック

モデルハウスの見学予約をする