レオグランデ枚方山之上
資料請求受付中!

資料請求をしていただいたお客様には、
事前案内など優先的に物件情報をお知らせいたします。

資料請求はこちら

お電話でのお問い合わせは072-817-9090まで。
スマホからはボタンタップでお電話できます。

電話をかける

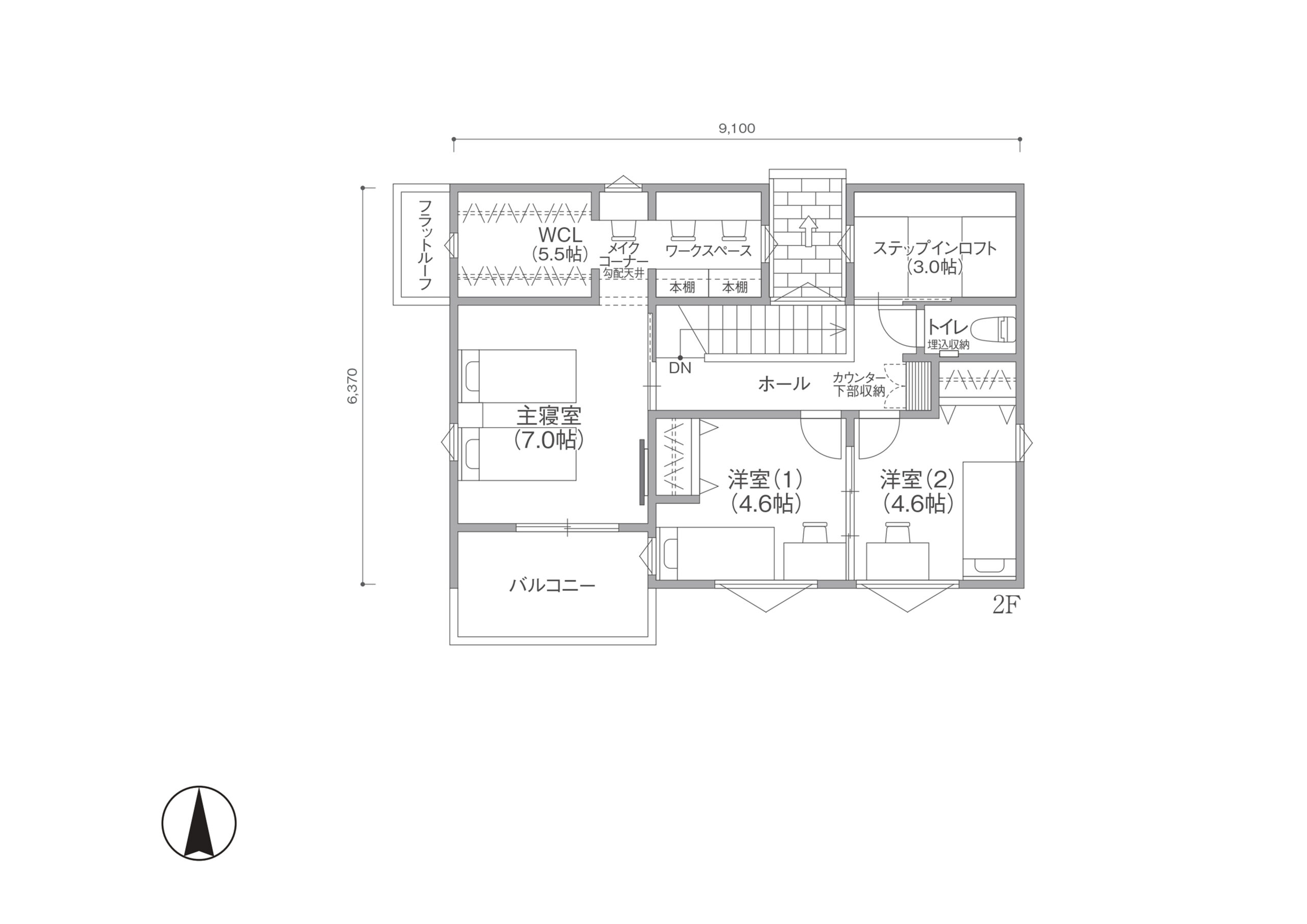
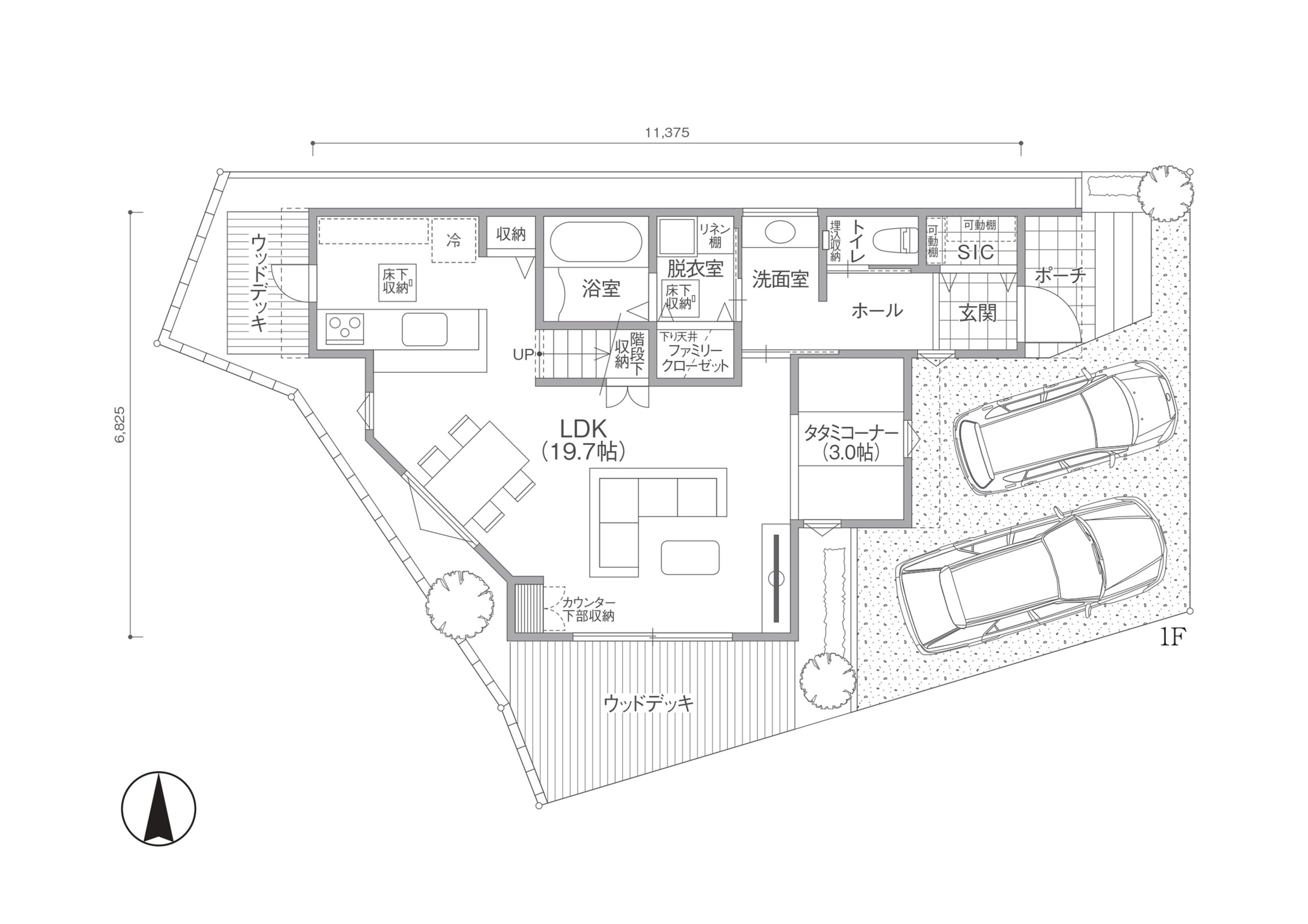
区画図

フリープラン区画(参考プラン) 2号地

  • 敷地面積:132.85㎡(約40.18坪)
  • 延床面積:109.30㎡(約33.06坪)
  • 1階床面積:60.03㎡(約18.16坪)
  • 2階床面積:49.27㎡(約14.90坪)
  • バルコニー面積:9.93㎡(約3.00坪)

フリープラン区画(参考プラン) 3号地

  • 敷地面積:118.03㎡(約35.70坪)
  • 延床面積:100.81㎡(約30.49坪)
  • 1階床面積:57.34㎡(約17.34坪)
  • 2階床面積:43.47㎡(約13.15坪)
  • バルコニー面積:6.21㎡(約1.87坪)

フリープラン区画(参考プラン) 4号地

  • 敷地面積:117.49㎡(約35.54坪)
  • 延床面積:102.16㎡(約30.90坪)
  • 1階床面積:57.86㎡(約17.50坪)
  • 2階床面積:44.30㎡(約13.40坪)
  • バルコニー面積:7.86㎡(約2.37坪)

フリープラン区画(参考プラン) 5号地

  • 敷地面積:117.96㎡(約35.68坪)
  • 延床面積:105.57㎡(約31.93坪)
  • 1階床面積:57.96㎡(約17.53坪)
  • 2階床面積:47.61㎡(約14.40坪)
  • バルコニー面積:5.79㎡(約1.75坪)

フリープラン区画(参考プラン) 6号地

  • 敷地面積:118.01㎡(約35.70坪)
  • 延床面積:109.84㎡(約33.22坪)
  • 1階床面積:59.62㎡(約18.03坪)
  • 2階床面積:50.22㎡(約15.19坪)
  • バルコニー面積:6.21㎡(約1.87坪)

フリープラン区画(参考プラン) 7号地

  • 敷地面積:121.40㎡(約36.72坪)
  • 延床面積:107.64㎡(約32.56坪)
  • 1階床面積:57.96㎡(約17.53坪)
  • 2階床面積:49.68㎡(約15.02坪)
  • バルコニー面積:5.79㎡(約1.75坪)

フリープラン区画(参考プラン) 8号地

  • 敷地面積:120.41㎡(約36.42坪)
  • 延床面積:105.77㎡(約31.99坪)
  • 1階床面積:57.75㎡(約17.47坪)
  • 2階床面積:48.02㎡(約14.52坪)
  • バルコニー面積:9.10㎡(約2.75坪)

フリープラン区画(参考プラン) 9号地

  • 敷地面積:121.70㎡(約36.81坪)
  • 延床面積:99.05㎡(約29.96坪)
  • 1階床面積:57.24㎡(約17.31坪)
  • 2階床面積:41.81㎡(約12.65坪)
  • バルコニー面積:8.38㎡(約2.53坪)

フリープラン区画(参考プラン) 10号地

  • 敷地面積:121.93㎡(約36.88坪)
  • 延床面積:106.40㎡(約32.18坪)
  • 1階床面積:60.03㎡(約18.16坪)
  • 2階床面積:46.37㎡(約14.02坪)
  • バルコニー面積:9.93㎡(約3.00坪)

リビングから繋がるアウトドア空間「ロジア」 ロジアとは、外壁材で箱型に囲んだ半屋外の庭のスペース。
外からの視線が気にならないから、ちょっと家の中ではできないな・・・ということが気軽にできるアウトドアリビングです。

路線図

MAP交野線「村野」駅より徒歩14分。
京阪本線「枚方市」駅より徒歩30分。
京阪バス「宮ノ前橋」バス停より徒歩4分。

google map

周辺環境

物件概要

所在地
大阪府枚方市山之上3丁目
849-1 他(地番)
交通
京阪電鉄交野線「村野」駅まで徒歩14分
京阪電鉄本線「枚方市」駅まで徒歩31分
総区画数
10区画
土地面積
117.49㎡~132.85㎡
地目
宅地
建ぺい率
50%
容積率
100%
建物工法
木造軸組工法(在来工法)
道路幅員
4.7m~7.1m
私道負担
なし
用途地域
第一種低層住居専用地域
地域地区
法22条区域・第一種高度地区
設備
水道(公営)、都市ガス、電気(関西電力)、汚水・雨水(公共下水)
売主
高橋開発株式会社 〒573-1171枚方市三栗1丁目1番24号 TEL/072-840-5000 宅地建物取引業免許番号/大阪府知事(12)20196号
所属団体
(一社)全国住宅産業協会会員
(社)全日本不動産協会会員
(社)不動産保証協会会員

レオグランデ枚方山之上 資料請求フォーム

お電話でのお問い合わせは072-817-9090まで。
スマホからはボタンタップでお電話できます。

電話をかける
必須
お名前
必須
フリガナ
必須
郵便番号
郵便番号を入力すると住所が自動入力されます。
必須
ご住所【市区町村・町名】
必須
ご住所【番地・マンション名等】
必須
メールアドレス
必須
電話番号
任意
ご質問・ご要望等
資料請求・お問い合わせにおける
個人情報の取扱いについて
本フォームからお客様が記入・登録された個人情報は、資料送付・電子メール送信・電話連絡などの目的で高橋開発株式会社が利用・保管します。ご記入の内容が不明瞭で資料をお送りできない場合、その他当社が円滑に運用するために必要な範囲において、確認のご連絡をさせていただくことがありますので、あらかじめご了承ください。また、お問合せ内容等は集計処理のうえ、個人を特定できない形で統計として活用させていただきます。 プライバシーポリシーについてをご覧ください。