

| 所在地 | 大阪府枚方市山之上西町1251-14他 |
|---|---|
| 総区画数 | 全11区画 |
| 交 通 |
京阪本線「枚方市」駅まで徒歩23分 京阪本線「枚方公園」駅まで徒歩21分 |
| 地目 | 宅地 |
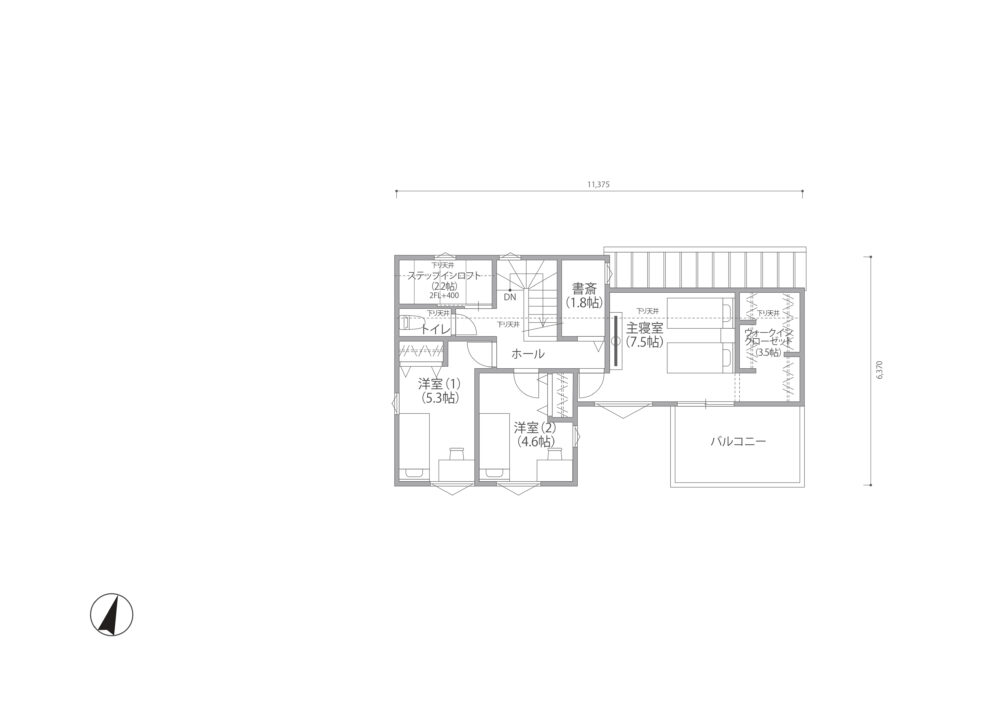
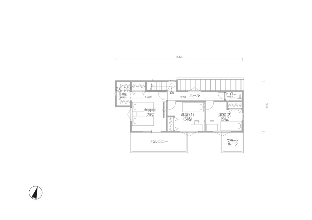
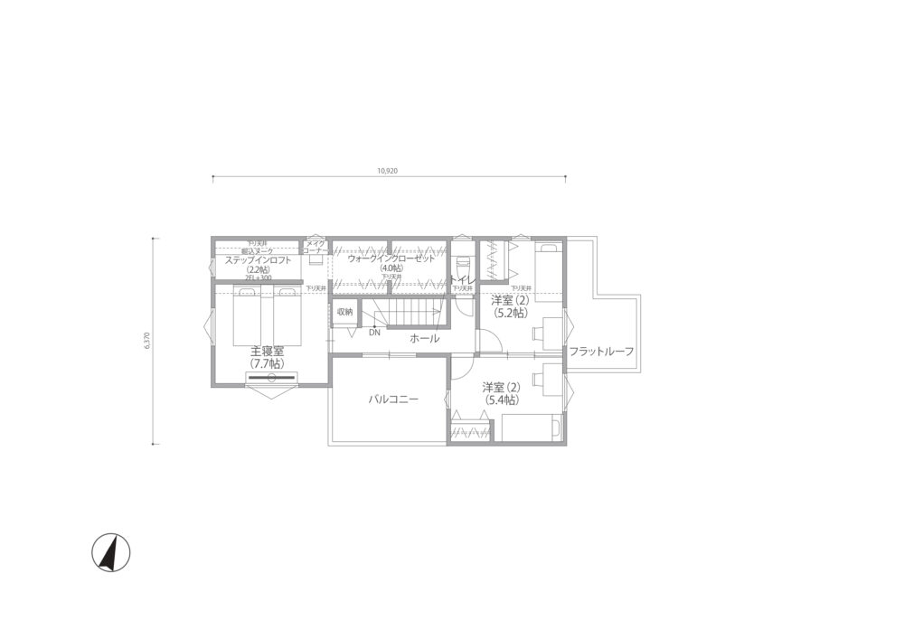
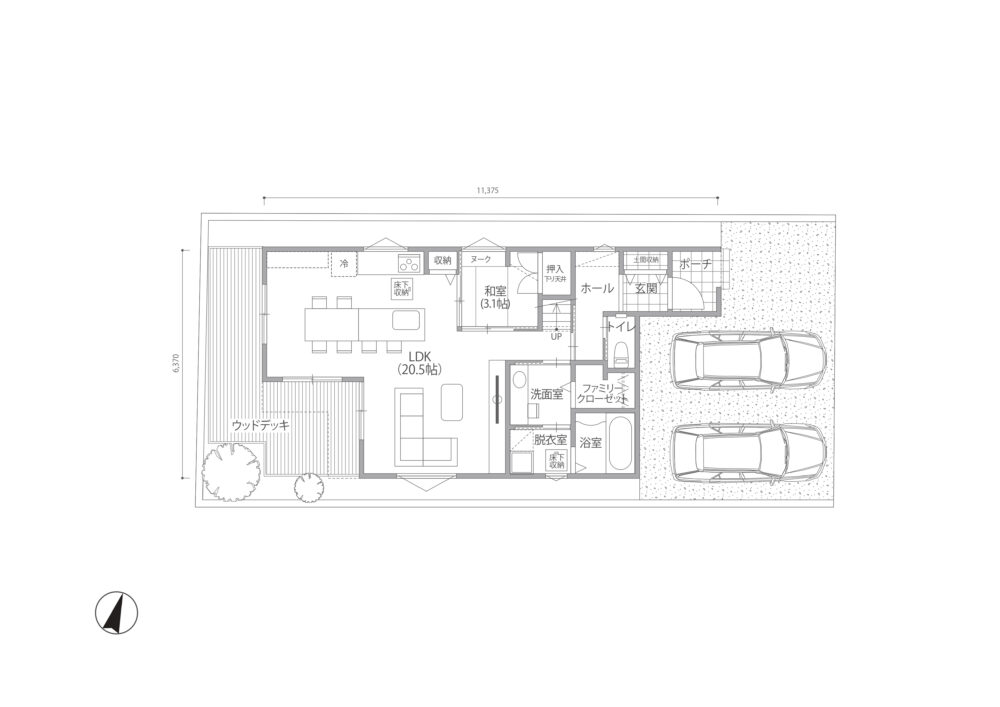
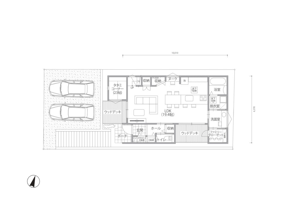
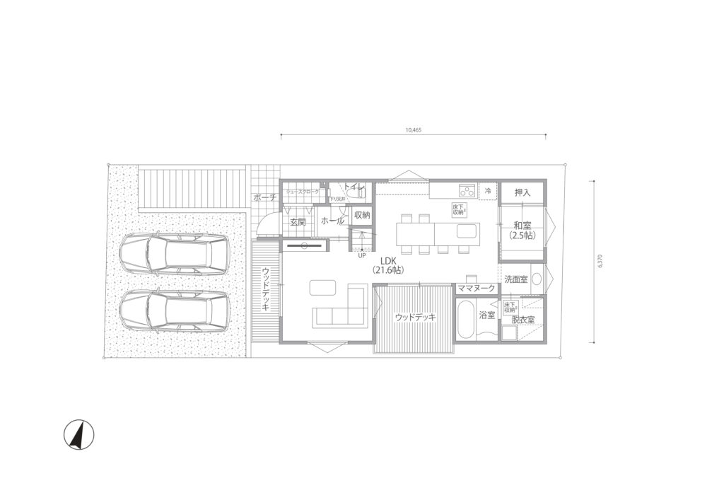
| 敷地面積 | 138.00m²~161.63m² |
| 建ぺい率 | 50% |
| 容積率 | 100% |
| 建物工法 | 木造軸組工法(在来工法) |
| 道路幅員 | 6.0m~6.8m |
| 私道負担 | なし |
| 用途地域 | 第一種低層住居専用地域 |
| 地域・地区 | 法22条区域、第一種高度地区 |
| 設備 | 水道(公営)、都市ガス、電気、汚水・雨水(公共下水) |
| 売主 | 高橋開発株式会社 |
| 所属団体 | (一社)全国住宅産業協会会員 (社)全日本不動産協会会員 (社)不動産保証協会会員 |